980 Diane Lane Moore SC

980 Diane Lane

$313,990 | MLS #: 329671

980 Diane Lane
Moore, SC29369

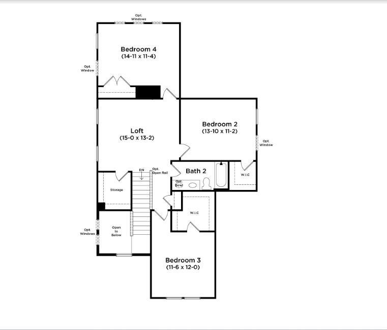
Welcome to Pleasant Falls! The only new homes in Spartanburg off of the Tyger River with James Hardie Siding. Step into your dream home, where comfort meets modern elegance in every corner. The inviting front porch leads into the open concept kitchen and living space, perfect for entertaining. The beautiful kitchen features a center island with sink giving you additional prep space and seating, soft white cabinetry, light Quartz countertops, tiled backsplash and stainless steel gas appliances. The high ceilings and tall windows give the living room lots of natural light and lead out to the covered back porch overlooking your backyard. The Primary Suite is situated off the living room and features a generous walk in closet, double sinks, and tiled shower with seat and glass door. The laundry room is located as your enter from the garage and completes the main level. Up the Oak staircase there is a loft space that is perfect for extra living space or even a home office. Off the loft space there are three additional bedrooms, including one with a balcony, A full bath with double sinks and an unfinished storage space complete the second floor. Smart home technology, energy-efficient construction, and a dedicated local warranty team ensure lasting convenience and comfort. Nestled amidst natural beauty, Pleasant Falls offers easy access to the scenic Tyger River and tree-lined homesites, providing a serene and peaceful atmosphere. Benefit from the convenience of a prime location, with proximity to Spartanburg District 6 schools (including Dorman High School) and major transportation corridors. This home will be complete early next year so call for more information and make Pleasant Falls your new home.
  • Property Features
    Style Foundation
    Craftsman Slab
    Floors Exterior
    Carpet
    Luxury Vinyl
    Hardboard Siding
    Heating System Heating Fuel Type
    Forced Air Gas - Natural
    Water/Sewer Lot Description
    Public Level
    Appliances Exterior Features
    Dishwasher
    Disposal
    Microwave
    Gas Oven
    Self Cleaning Oven
    Gas Range
    Range
    Balcony
    Interior Features Specialty Rooms
    Cable Available
    Ceilings-Some 9 Ft +
    Attic Stairs Pulldown
    Walk-In Closet(s)
    Ceiling - Smooth
    Solid Surface Counters
    Open Floorplan
    Pantry
    Smart Home
    Loft
    Storage Space Garbage Pickup
    Garage
    Other/See Remarks
    Public

Property Photos

980 Diane Lane image 1
980 Diane Lane image 2
980 Diane Lane image 3
980 Diane Lane image 4
980 Diane Lane image 5
980 Diane Lane image 6

Property Location

Listed By: Chelsea Cathcart 864-729-4168

Interested in this
home?

Call us: 864.542.8008

Contact Us Today For More Information

Error Message