1017 Skidaway Spartanburg SC

1017 Skidaway

$336,380 | MLS #: 331042

1017 Skidaway
Spartanburg, SC29303

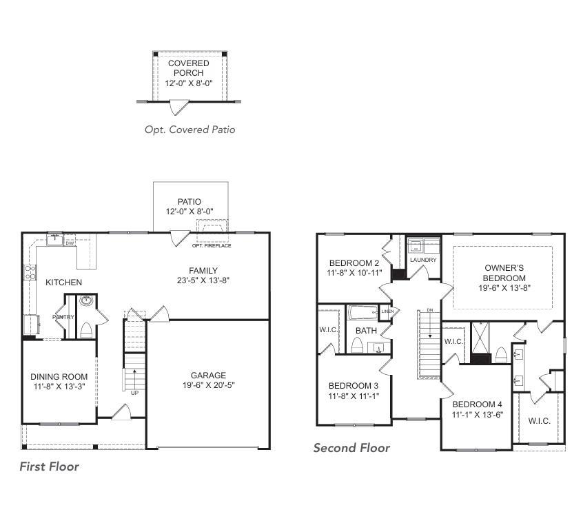
Discover the inviting charm of Halton Oaks, a thoughtfully designed community just minutes from shopping, dining, and entertainment. With award-winning schools, convenient interstate access, and exceptional amenities, it’s the perfect place to call home. The Riviera floor plan offers a bright, open layout designed for comfortable family living and effortless entertaining. The first floor welcomes you with a spacious dining room that flows into a modern kitchen featuring gleaming quartz countertops, pantry, and direct access to the expansive family room. Sliding doors lead to a covered patio, creating a seamless connection between indoor and outdoor living spaces. Upstairs, the luxurious owner’s suite serves as a private retreat with a beautifully appointed bath and huge walk-in closet. Three additional bedrooms, each with ample closet space, share a full bath and are conveniently located near the laundry room for added ease. With a two-car garage, thoughtful storage, and flexible spaces throughout, the Riviera combines modern design with everyday practicality, making it the perfect home plus there’s even an irrigation system. Community amenities include pool, clubhouse and playground. Schedule your tour today! ***Limited time buyer incentives including up to 100% Financing with down payment assistance***
  • Property Features
    Style Foundation
    Traditional Slab
    Floors Exterior
    Carpet
    Ceramic Tile
    Luxury Vinyl
    Stone
    Vinyl Siding
    Heating System Heating Fuel Type
    Forced Air Gas - Natural
    Water/Sewer Lot Description
    Public Level
    Underground Utilities
    Appliances Exterior Features
    Dishwasher
    Disposal
    Microwave
    Self Cleaning Oven
    Gas Range
    Free-Standing Range
    Refrigerator
    Aluminum/Vinyl Trim
    Sprinkler System
    Interior Features Specialty Rooms
    Ceiling Fan(s)
    Cable Available
    Ceilings-Some 9 Ft +
    Tray Ceiling(s)
    Attic Stairs Pulldown
    Walk-In Closet(s)
    Ceiling - Smooth
    Solid Surface Counters
    Open Floorplan
    Walk-In Pantry
    Radon Mitigation System
    Breakfast Area
    Storage Space Garbage Pickup
    Garage Private

Property Photos

1017 Skidaway image 1
1017 Skidaway image 2
1017 Skidaway image 3
1017 Skidaway image 4
1017 Skidaway image 5
1017 Skidaway image 6
1017 Skidaway image 7
1017 Skidaway image 8

Property Location

Listed By: Stefanie Miller 843-813-1860

Interested in this
home?

Call us: 864.542.8008

Contact Us Today For More Information

Error Message