522 Livingston Inman SC

522 Livingston

$499,000 | MLS #: 326353

522 Livingston
Inman, SC29350

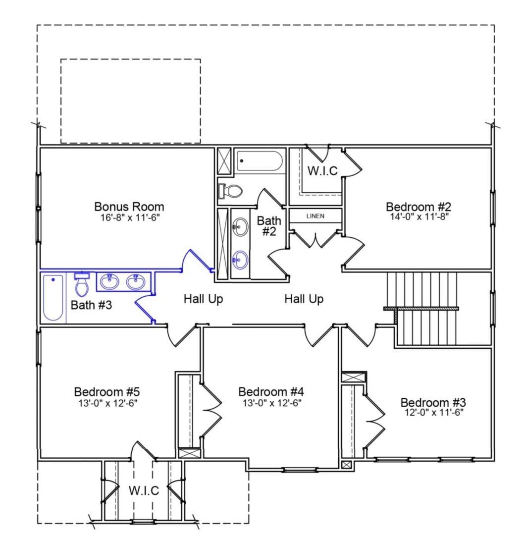
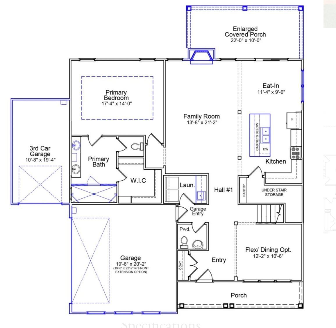
Spacious, stylish, and ready to impress—welcome to The Savannah at Hawthorn Ridge, a thoughtfully designed five-bedroom, three-and-a-half-bath home on over half an acre in a scenic new community. Featuring a three-car side-load garage, full front porch, and oversized 22-by-10-foot covered back patio, it offers ample indoor and outdoor living space. Inside, an open layout with luxury vinyl plank flooring flows into a great room anchored by a striking fireplace—perfect for cozy evenings or entertaining. The heart of the home is a chef-inspired kitchen with a gas double-oven range, under-cabinet and pendant lighting over the large island, and abundant storage. On the main level, the primary suite serves as a serene retreat with a boxed ceiling and spa-like eight-foot tiled shower featuring dual showerheads. Upstairs are four generous bedrooms, two full baths, and a versatile additional room ideal for a theater, game room, or home office. Positioned on a wide homesite of more than 100?feet (offering extra privacy), plus a four-zone irrigation system and ceramic tile flooring in all full baths, this home delivers on space, style, and smart features in one of the area’s most desirable new neighborhoods. Come see why The Savannah at Hawthorn Ridge is the place you’ll want to call home—contact us today to schedule your tour.
  • Residential
  • Hawthorn Ridge
  • 1-Holly Springs
  • 1-T. E. Mabry Jr High
  • 1-Chapman High
  • Status: Active
  • 5 Bedrooms
  • 3 Baths
  • 1 Half Baths
  • Built 2025
  • 3 Car Garage
  • Property Features
    Style Foundation
    Craftsman
    Floors Exterior
    Carpet
    Luxury Vinyl
    Vinyl Siding
    Heating System Heating Fuel Type
    Heat Pump Electricity
    Water/Sewer Lot Description
    Public
    Appliances Exterior Features
    Dishwasher
    Disposal
    Microwave
    Electric Oven
    Interior Features Specialty Rooms
    High Ceilings
    Tray Ceiling(s)
    Ceiling - Smooth
    Open Floorplan
    Walk-In Pantry
    Bonus
    Guest Accomodations
    Main Fl Master Bedroom
    Storage Space Garbage Pickup
    Attic Private

Property Photos

522 Livingston image 1
522 Livingston image 2
522 Livingston image 3
522 Livingston image 4
522 Livingston image 5
522 Livingston image 6

Property Location

Listed By: Rebecca Thornley 864-498-3176

Interested in this
home?

Call us: 864.542.8008

Contact Us Today For More Information

Error Message