2011 Hillman Roebuck SC

2011 Hillman

$189,900 | MLS #: 325608

2011 Hillman
Roebuck, SC29376

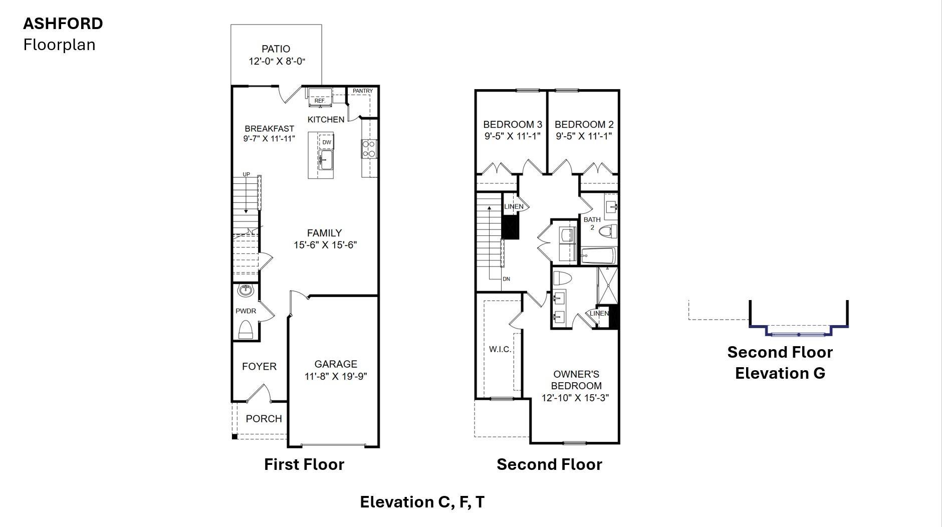
Discover the perfect balance of affordability and elevated living at Trenton Place, a thoughtfully designed community just minutes from Downtown Spartanburg. USDA eligible! Conveniently located near major employers with easy access to I-26 and I-85, Trenton Place offers unmatched convenience and comfort. This move in ready, 2-story townhome features an open-concept floor plan with 3 spacious bedrooms, 2.5 bathrooms, and a one car garage. Enjoy modern finishes such as hard surface flooring in the main living areas, elegant quartz countertops, white shaker cabinets, a gas stove, a large kitchen island, a huge corner pantry and included refrigerator. This home also includes whole house blinds. Step into the primary suite, where you’ll find a beautiful bath with sliding glass shower doors, a dual vanity, and a generous walk-in closet that is a must see. Entertain with ease on your large private rear patio, complete with fencing on each side for privacy – perfect for gatherings and quiet evenings alike. At Trenton Place, you’ll also enjoy maintenance-free living with landscaping and lawn care included. Planned amenities such as a playground and outdoor firepit area will create the ideal setting for neighbors, friends, and family to connect. This is more than a home—it’s a lifestyle. There’s never been a better time to explore Trenton Place and make Spartanburg your new home. Schedule your tour today! ***Limited time buyer incentives including up to 100% Financing with down payment assistance***
  • Property Features
    Style Foundation
    Craftsman Slab
    Floors Exterior
    Carpet
    Laminate
    Vinyl
    Stone
    Vinyl Siding
    Heating System Heating Fuel Type
    Forced Air
    Gas Available
    Gas - Natural
    Water/Sewer Lot Description
    Public Corner Lot
    Level
    Appliances Exterior Features
    Dishwasher
    Disposal
    Microwave
    Gas Oven
    Self Cleaning Oven
    Gas Range
    Refrigerator
    Sprinkler System
    Interior Features Specialty Rooms
    Attic Stairs Pulldown
    Walk-In Closet(s)
    Ceiling - Smooth
    Solid Surface Counters
    Entrance Foyer
    Open Floorplan
    Walk-In Pantry
    Breakfast Area

Property Photos

2011 Hillman image 1
2011 Hillman image 2
2011 Hillman image 3
2011 Hillman image 4
2011 Hillman image 5
2011 Hillman image 6
2011 Hillman image 7
2011 Hillman image 8

Property Location

Listed By: John Dinnen 864-837-2632

Interested in this
home?

Call us: 864.542.8008

Contact Us Today For More Information

Error Message