348 Prosperity Moore SC

348 Prosperity

$274,000 | MLS #: 322662

348 Prosperity
Moore, SC29369

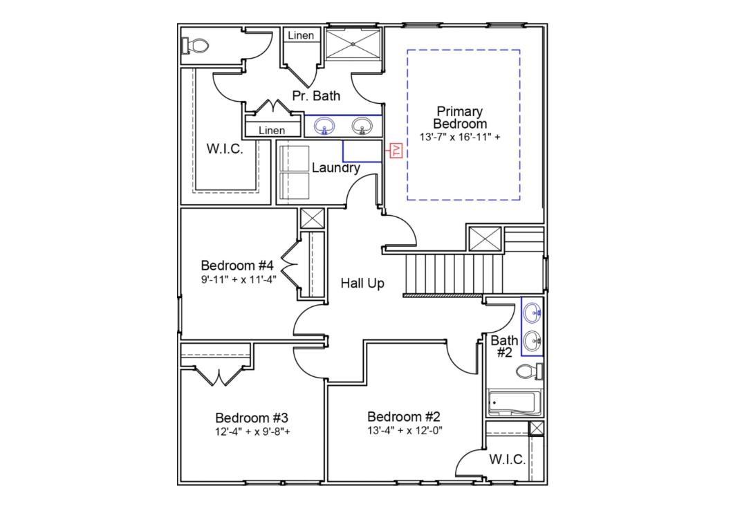
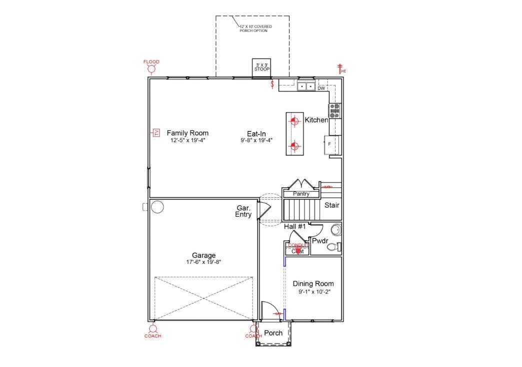
This Lancaster floorplan is a thoughtfully designed two-story home that includes 4 bedrooms and 2.5 bathrooms. Just of the entry of the home your dining room awaits and is perfect for those family meals and gatherings. As you make your way through the home you enter the stylish kitchen, which boasts Shaker-style cabinets, granite countertops, gas range and a tile backsplash. The open-concept design connects the kitchen to the spacious great room, making it perfect for entertaining. Upstairs, the primary bedroom leads to a primary bathroom with two linen closets, access to a oversized walk-in closet. The laundry room is conveniently located just outside the primary bedroom, close to the three spare bedrooms and their full bathroom. Nestled just a stone’s throw from Linville Hills Park and surrounded by mature trees, this home offers the perfect blend of tranquility and convenience. Located just minutes from Downtown Spartanburg, Braxton Place provides easy access to shopping, schools, hospitals, and major highways, including I-26 and I-85. Residents are also zoned for the highly sought-after Dorman High School and are just 1.2 miles from R.P. Dawkins Middle School.
  • Property Features
    Style Foundation
    Craftsman Slab
    Floors Exterior
    Carpet
    Luxury Vinyl
    Vinyl Siding
    Heating System Heating Fuel Type
    Gas Available Gas - Natural
    Water/Sewer Lot Description
    Public Level
    Underground Utilities
    Appliances Exterior Features
    Gas Cooktop
    Dishwasher
    Disposal
    Microwave
    Electric Oven
    Interior Features Specialty Rooms
    Cable Available
    Attic Stairs Pulldown
    Walk-In Closet(s)
    Ceiling - Smooth
    Solid Surface Counters
    Open Floorplan
    Pantry
    Storage Space Garbage Pickup
    Attic
    Garage
    Private

Property Photos

348 Prosperity image 1
348 Prosperity image 2
348 Prosperity image 3

Property Location

Listed By: Aaron Yant 864-849-8390

Interested in this
home?

Call us: 864.542.8008

Contact Us Today For More Information

Error Message