373 Prosperity Moore SC

373 Prosperity

$229,000 | MLS #: 326678

373 Prosperity
Moore, SC29369

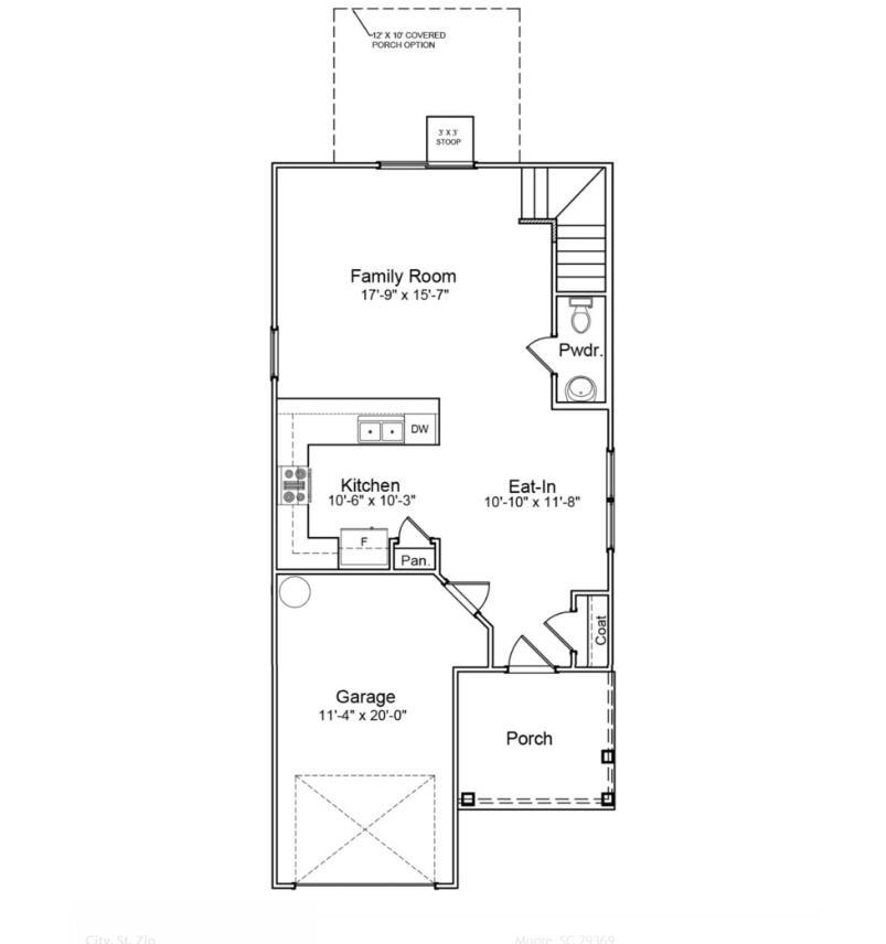
Welcome to Mungo homes Bartow floorplan! This thoughtfully designed two-story home featuring three bedrooms and two-and-a-half bathrooms. Just off the entryway, a cozy dining area flows seamlessly into the stylish kitchen, which boasts Shaker-style cabinets, granite countertops, and a tile backsplash. The open-concept design connects the kitchen to the spacious great room, making it perfect for entertaining. Luxury vinyl plank flooring extends throughout the main floor, combining durability with modern appeal. Upstairs, the primary suite offers a peaceful retreat with a vaulted ceiling, a spacious walk-in closet, and an en-suite bathroom featuring dual sinks and a five-foot shower. Two additional bedrooms, a second full bathroom, and a conveniently located laundry room complete the second floor. Nestled just a stone’s throw from Linville Hills Park and surrounded by mature trees, this home offers the perfect blend of tranquility and convenience. Located just minutes from Downtown Spartanburg, Braxton Place provides easy access to shopping, schools, hospitals, and major highways, including I-26 and I-85. Residents are also zoned for the highly sought-after Dorman High School and are just 1.2 miles from R.P. Dawkins Middle School. Don’t miss this opportunity to own a beautiful home in a prime location! Schedule a tour today and explore all that Braxton Place provides.es.
  • Property Features
    Style Foundation
    Craftsman Slab
    Floors Exterior
    Carpet
    Laminate
    Vinyl Siding
    Heating System Heating Fuel Type
    Forced Air Electricity
    Gas - Natural
    Water/Sewer Lot Description
    Public Level
    Appliances Exterior Features
    Gas Cooktop
    Dishwasher
    Disposal
    Microwave
    Electric Oven
    Interior Features Specialty Rooms
    Attic Stairs Pulldown
    Ceiling - Smooth
    Solid Surface Counters
    Open Floorplan
    Walk-In Pantry
    Storage Space Garbage Pickup
    Attic Private

Property Photos

373 Prosperity image 1
373 Prosperity image 2
373 Prosperity image 3

Property Location

Listed By: Kaz Ansari 843-437-8402

Interested in this
home?

Call us: 864.542.8008

Contact Us Today For More Information

Error Message