117 Farmwell Woodruff SC

117 Farmwell

$314,999 | MLS #: 329794

117 Farmwell
Woodruff, SC29388

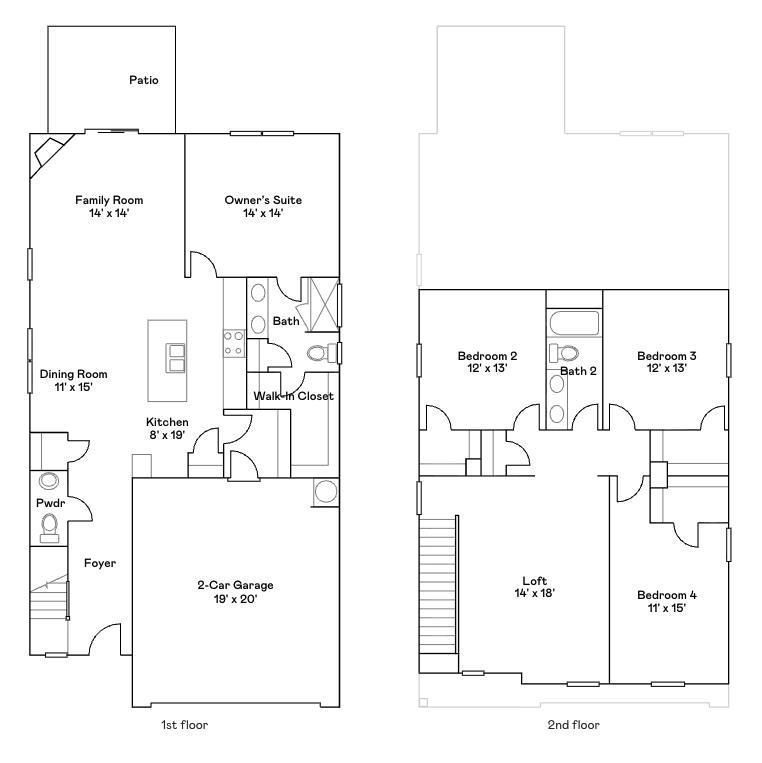
The Sweetbay floor plan at Neely Park Walk in Woodruff, SC, is a spacious and thoughtfully designed two-story home featuring 4 bedrooms, 2.5 bathrooms, and a 2-car garage. The main level offers an open-concept layout connecting the kitchen, dining, and family rooms, with sliding doors that lead to a patio, while the owner’s suite is tucked in the back for added privacy. Upstairs includes a versatile loft and three secondary bedrooms, each with walk-in closets. This plan is ideal for families seeking both connectivity and personal space, and residents enjoy access to community amenities such as a pool, clubhouse, playground, dog park, and sports courts. With several homes available or under construction, the Sweetbay combines functional design with a welcoming neighborhood environment.
  • Residential
  • None
  • 4-Woodruff E
  • Woodruff Middle School
  • Other
  • Status: Active
  • 4 Bedrooms
  • 2 Baths
  • 1 Half Baths
  • Built 2025
  • 2 Car Garage
  • Property Features
    Style Foundation
    Craftsman Slab
    Floors Exterior
    Carpet
    Luxury Vinyl
    Stone
    Vinyl Siding
    Heating System Heating Fuel Type
    Forced Air
    Heat Pump
    Electricity
    Water/Sewer Lot Description
    Public Sloped
    Appliances Exterior Features
    Dishwasher
    Disposal
    Microwave
    Electric Oven
    Range - Smooth Top
    Free-Standing Range
    Aluminum/Vinyl Trim
    Interior Features Specialty Rooms
    Cable Available
    Walk-In Closet(s)
    Ceiling - Smooth
    Solid Surface Counters
    Open Floorplan
    Walk-In Pantry
    Bonus
    Breakfast Area
    Storage Space Garbage Pickup
    Private

Property Photos

117 Farmwell image 1
117 Farmwell image 2
117 Farmwell image 3

Property Location

Listed By: Katherine Jarrett 864-433-1015

Interested in this
home?

Call us: 864.542.8008

Contact Us Today For More Information

Error Message