240 Cobridge Woodruff SC

240 Cobridge

$254,999 | MLS #: 332040

240 Cobridge
Woodruff, SC29388

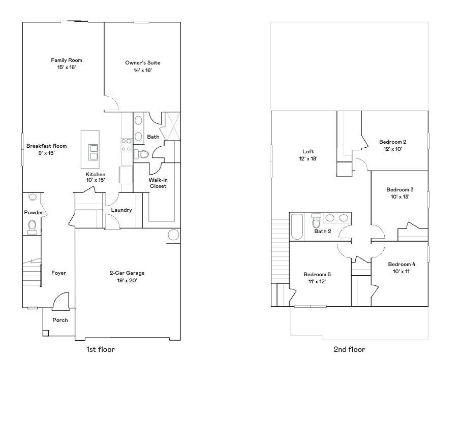
The Crane floorplan at Autumn Glen in Woodruff, SC, is designed to both comfort and convenience, making it the perfect family home. With 4 bedrooms and 2.5 bathrooms, this two-story layout is ideal for modern living. The first floor features a spacious family room that seamlessly connects to the kitchen and breakfast area, creating an open, welcoming space for family gatherings and daily life. A two-car garage adds convenience and functionality. Upstairs, you'll find a versatile loft, perfect for additional living or play space, along with four restful bedrooms, including a large owner’s suite that serves as a private retreat. This floorplan has everything a growing family needs, blending practicality with comfort. It's the ideal home for making lasting memories with your loved ones. It's ideal for families seeking a peaceful neighborhood with convenient connections to Greenville and Spartanburg.
  • Residential
  • Autumn Glen
  • 4-Woodruff E
  • Woodruff Middle School
  • Other
  • Status: Active
  • 4 Bedrooms
  • 2 Baths
  • 1 Half Baths
  • Built 2025
  • 2 Car Garage
  • Property Features
    Style Foundation
    Craftsman Slab
    Floors Exterior
    Carpet
    Luxury Vinyl
    Stone
    Vinyl Siding
    Heating System Heating Fuel Type
    Forced Air
    Heat Pump
    Electricity
    Water/Sewer Lot Description
    Public Sloped
    Appliances Exterior Features
    Dishwasher
    Disposal
    Electric Oven
    Free-Standing Range
    Microwave
    Range - Smooth Top
    Aluminum/Vinyl Trim
    Interior Features Specialty Rooms
    Cable Available
    Walk-In Closet(s)
    Ceiling - Smooth
    Solid Surface Counters
    Open Floorplan
    Walk-In Pantry
    Breakfast Area
    Bonus
    Storage Space Garbage Pickup
    Private

Property Photos

240 Cobridge image 1
240 Cobridge image 2
240 Cobridge image 3
240 Cobridge image 4
240 Cobridge image 5
240 Cobridge image 6
240 Cobridge image 7
240 Cobridge image 8

Property Location

Listed By: Katherine Jarrett 864-433-1015

Interested in this
home?

Call us: 864.542.8008

Contact Us Today For More Information

Error Message