495 Adhurst Enoree SC

495 Adhurst

$368,999 | MLS #: 326852

495 Adhurst
Enoree, SC29335

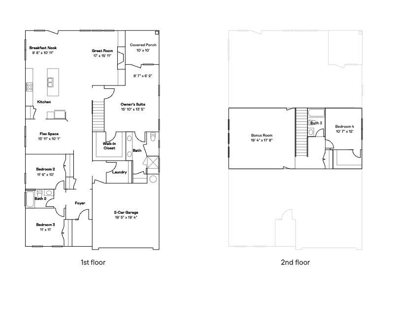
Welcome home to the beautiful Davenport! This home has everything you could imagine!! The Davenport is a one and a half story ranch and our most popular floor plan! At the front of the home you will find an inviting foyer and two secondary bedrooms with a shared bath. As you move through the home you will be greeted by a stunning formal dining room followed by the open concept kitchen. With it's beautiful curved quartz island and stunning gourmet kitchen option with double ovens and gas cooktop, it is sure to please all you chefs out there. The gorgeous light-filled extended great room features a beautiful gas log fireplace-great for those rainy days you want to curl up with a good book. The primary suite is a true oasis complete with sitting area and screened porch. Upstairs you will find an open loft area and 4th bedroom and 3rd bath.
  • Residential
  • Arrowood Acres
  • 4-Woodruff E
  • Woodruff Middle School
  • Other
  • Status: Active
  • 4 Bedrooms
  • 3 Baths
  • Built 2025
  • 2 Car Garage
  • Property Features
    Style Foundation
    Craftsman Slab
    Floors Exterior
    Carpet
    Luxury Vinyl
    Stone
    Vinyl Siding
    Heating System Heating Fuel Type
    Forced Air
    Heat Pump
    Electricity
    Water/Sewer Lot Description
    Public Sloped
    Appliances Exterior Features
    Dishwasher
    Disposal
    Electric Oven
    Free-Standing Range
    Microwave
    Range - Smooth Top
    Aluminum/Vinyl Trim
    Interior Features Specialty Rooms
    Cable Available
    Walk-In Closet(s)
    Ceiling - Smooth
    Solid Surface Counters
    Open Floorplan
    Walk-In Pantry
    Bonus
    Breakfast Area
    Storage Space Garbage Pickup
    Private

Property Photos

495 Adhurst image 1
495 Adhurst image 2
495 Adhurst image 3

Property Location

Listed By: Katherine Jarrett 864-433-1015

Interested in this
home?

Call us: 864.542.8008

Contact Us Today For More Information

Error Message