709 Hadley Enoree SC

709 Hadley

$324,939 | MLS #: 330241

709 Hadley
Enoree, SC29335

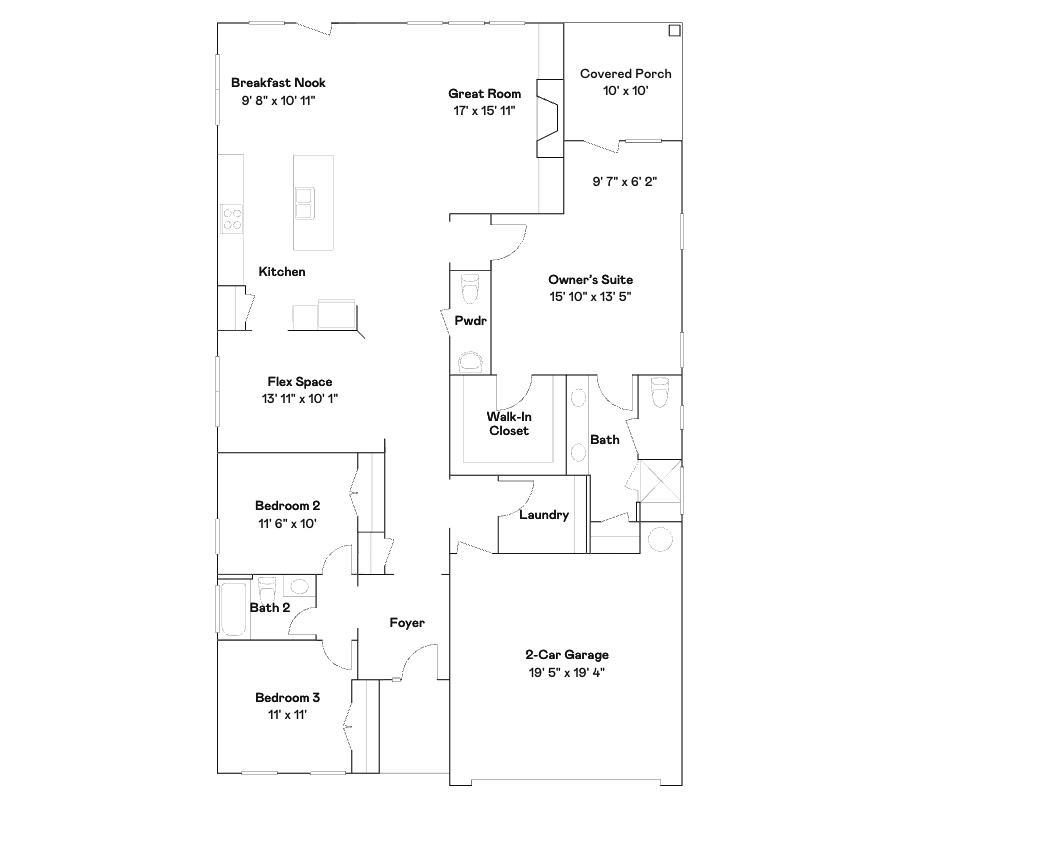
The Dawson floorplan at Arrowood Acres offers thoughtfully designed single-story living with a focus on comfort, functionality, and style. This home features an open-concept layout that seamlessly connects the family room, gourmet kitchen, and breakfast nook—creating an ideal space for both daily living and entertaining. A flexible additional room near the main living area allows for customization as a formal dining room, home office, or playroom. Two secondary bedrooms share a full bath, while the private owner's suite is tucked away for privacy and includes a spacious walk-in closet, a well-appointed bathroom, and direct access to a covered porch—perfect for relaxing outdoors. With its balance of open spaces and quiet retreats, the Dawson is an excellent choice for those seeking modern, single-level living in the peaceful community of Enoree, SC.
  • Residential
  • Arrowood Acres
  • 4-Woodruff E
  • Woodruff Middle School
  • Other
  • Status: Active
  • 3 Bedrooms
  • 2 Baths
  • 1 Half Baths
  • Built 2025
  • 2 Car Garage
  • Property Features
    Style Foundation
    Craftsman Slab
    Floors Exterior
    Carpet
    Luxury Vinyl
    Stone
    Vinyl Siding
    Heating System Heating Fuel Type
    Forced Air
    Heat Pump
    Electricity
    Water/Sewer Lot Description
    Public Sloped
    Appliances Exterior Features
    Dishwasher
    Disposal
    Microwave
    Electric Oven
    Range - Smooth Top
    Free-Standing Range
    Aluminum/Vinyl Trim
    Interior Features Specialty Rooms
    Cable Available
    Walk-In Closet(s)
    Ceiling - Smooth
    Solid Surface Counters
    Open Floorplan
    Walk-In Pantry
    Bonus
    Breakfast Area
    Storage Space Garbage Pickup
    Private

Property Photos

709 Hadley image 1
709 Hadley image 2
709 Hadley image 3

Property Location

Listed By: Katherine Jarrett 864-433-1015

Interested in this
home?

Call us: 864.542.8008

Contact Us Today For More Information

Error Message